
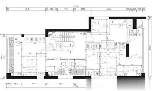
此套loft户型定位为现代风格。由于户型原始布局固定,因而只能规划一层为休闲区,二楼作为睡眠休息区。所幸,几乎所有墙体皆为非承重墙,这便赋予了空间无限的改造可能性。
▲一层的原始结构图。
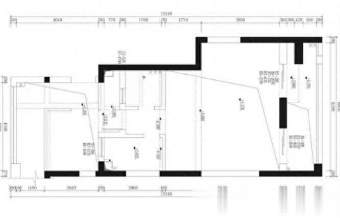
▲砸掉一些墙体,一楼的基本格局就形成了。虽然原始有点乱,但是可以改造的墙体居多
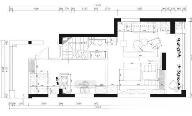
▲最终一楼的设计图纸,客餐厅,一厨一卫一阳台,基本一层就作为全家休闲的地方
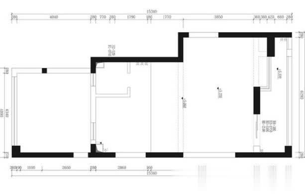
▲二楼的设计布局图纸,三房两卫一阳台,基本是私密的睡眠区域
一楼进门的玄关区域设计巧妙。直对的通顶鞋柜背后恰好是储藏室空间,右手设置了换鞋凳,墙面贴上六边形墙贴以保护墙面,原本枣红色的防盗门经毛毡装饰,在灯光布局下,进门便倍感温馨。
▲鞋柜的背后就是小的储藏室,以及门口的平板收纳柜,用来放置家里的各种杂物,没有装门,黑色的个性布帘遮挡
永华配资提示:文章来自网络,不代表本站观点。